Home Lo Studio Progetti Contatti

Portfolio

I nostri
Progetti

Progetto 1
Terziario

Commercio, cinema, ristoro. Ma soprattutto: un luogo dove tornare.

Un polo di intrattenimento e servizi pensato per essere molto più della somma delle sue funzioni. Il cinema multisala è il cuore pulsante dell'intervento, attorno a lui si organizzano spazi commerciali, aree ristoro e luoghi di socialità, in un sistema architettonico unitario dove ogni volume ha un ruolo preciso e un'identità visiva riconoscibile. Colori forti, forme nette, una rooftop che guarda fuori. Un progetto che non vuole passare inosservato.

Progetto 2
Terziario

Un centro commerciale che non si chiude su sé stesso. Anzi, si apre.

In provincia di Como, un layout polifunzionale progettato per fare da punto di incontro tra commercio, servizi e vita urbana. La sfida non era solo distribuire funzioni e parcheggi, era costruire un luogo, uno spazio capace di accogliere chi arriva in auto, chi scende dall'autobus, chi passa a piedi. Tutti con la stessa facilità, tutti con la stessa dignità. Perché un centro commerciale ben progettato non è semplicemente un contenitore di negozi: è un pezzo di città.

Progetto 3
Residenziale · Restauro

Trasformare i vincoli in opportunitĂ .

A Como, nell'ambito di un piano di recupero urbano, nasce una residenza pensata per gli studenti e per la città. L'area esisteva già, con le sue complessità, i suoi limiti, le sue relazioni con il paesaggio circostante. Il progetto non li ha ignorati: li ha ascoltati, e ne ha fatto il punto di partenza. Il risultato è un intervento contemporaneo e accogliente, capace di dialogare con il contesto urbano e naturale. Riqualificare non significa solo costruire. Significa restituire qualcosa alla città.

Progetto 4
Terziario

Un centro commerciale che ridisegna il paesaggio urbano di Fino Mornasco.

Quando la distribuzione degli spazi diventa architettura, ogni volume racconta qualcosa. Questo studio di layout nasce dalla volontà di andare oltre la semplice funzionalità: composizione, ritmo e identità visiva lavorano insieme per creare un intervento che sappia dialogare con il contesto urbano e lasciare un segno riconoscibile. Volumi dinamici, soluzioni innovative, un'immagine forte. Perché anche un centro commerciale può, e deve, aspirare a essere bella architettura.

Progetto 5
Residenziale

Villa unifamiliare con vista lago · Como

Progetto di villa unifamiliare con vista lago sul lago di Como: il progetto utilizza materiali innovativi rispettando però la conformazione e il valore del luogo.

Progetto 6
Restauro · Interno

Scala interna in ferro e pietra · La Presentazione, Como

Progettazione e realizzazione di scala di collegamento interno nell'edificio "La Presentazione" a Como, realizzata in ferro e pietra.

Progetto 7
Restauro

Edificio "La Presentazione" · Como

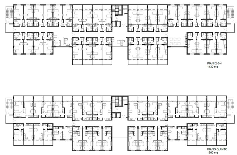
Facciata principale dell'edificio "La Presentazione" a Como. Il progetto, su incarico del Politecnico di Milano, è un intervento di restauro di un edificio del 1700, che ha previsto la realizzazione di 195 posti letto per studenti, oltre a palestra, cucine, sala musica, studio, biblioteca e uffici.

Progetto 8
Residenziale

Palazzina residenziale 10 appartamenti · Villa Guardia

Progettazione e realizzazione di palazzina residenziale di 10 appartamenti nel Comune di Villa Guardia.

Progetto 9
Restauro · Residenziale

Restauro conservativo villa d'epoca · Lago di Como

Restauro conservativo di villa d'epoca sul Lago di Como, che prevede la realizzazione di 5 appartamenti collocati in un edificio particolarmente significativo in un parco di piante secolari.

Progetto 10
Residenziale

Villa panoramica con piscina a sfioro · Como

Como, progetto di villa in zona panoramica con vista lago e piscina a sfioro.

Hai un progetto in mente?

Raccontaci la tua idea. Ogni grande progetto nasce da una conversazione.

Contattaci